欢迎来南通申东冶金机械有限公司官网! |加入收藏|设为首页
全国服务热线0513-83858103
SDHB组合式斜板沉淀器

加入时间:2016-3-17 14:57:44  点击:

一、概 述
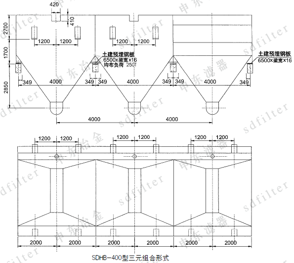
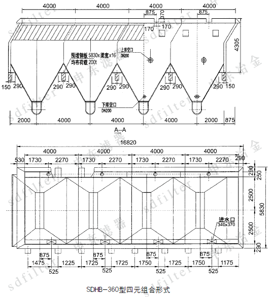
      该产品属固液分离设备,其沉淀器结构如图1所示。沉淀器按沉淀步骤分为四层。底层为污泥压实浓缩层,第二层为絮凝沉降层,第三层为斜板沉淀层,第四层为表面清水层。污水经混合加药后由进水槽首先进入絮凝沉降层,在药剂及重力的作用下,部分较大较重固体颗粒靠重力下沉至底层。其余固体颗粒随水流升至斜板沉淀层,在这里运用浅池沉淀理论,利用斜板间距迅速缩短沉淀时间,达到快速固液分离的效果。表面层为清水区,表层清水经齿墙流入集水槽送往出水口。该产品设计理论先进,节能高效,占地面积小,操作简便,运行可靠,在冶金、机械、化工、电力、市政工程等行业的污水处理系统得到广泛的应用。

二、特 点
      1、采用组合设计。
      a、利于灵活布置,合理利于土地。
      b、选型时可根据水量进行组合。
      c、可灵活设计备用率,启、停、检修方便。
      2、采用中间出泥的螺旋输送机,轴向推力小,不易堵塞,运行可靠。
      3、若具有气源条件,可配置气力提升装置,取代传统的泥浆泵,使操作维护更为简单,亦可用计算机程序控制。
      4、比传统的幅射式沉淀池出泥泥浆浓度大,可节省浓缩池。
      5、斜板材质可有多种选择,化纤帆布、塑料、玻璃钢等。其中我公司筛选的化纤蓬布耐腐蚀、耐磨损、抗老化、结实耐用,深受用户好评。

三、型号说明

四、单池规格及性能参数







五、排泥工艺操作说明
      打开气动球阀4,通入压缩空气,然后启动螺旋输泥机,关闭电磁阀3,切断挠性阀2的气源,挠性阀打开,开始排泥。连续排泥结束 先停螺旋输泥机,再打开电磁阀3,使挠性阀2关闭,延时一段时间后,关闭气动球阀4,完成一次排泥过程。浆液阀1,6常开,只在检修时关闭。

上一页:SDZX组合高效斜板(管)沉淀池
下一页:SDYX型高效药剂除油斜管沉淀器
南通申东冶金机械有限公司 南通申东滤器制造有限公司 地址:江苏省启东市民主工业区118号
总机: 0513-83358129 销售热线: 0513-83117130 服务热线: 0513-83858103 传真: 0513-83358113
E-mail: webmaster@sd-filter.com 邮编: 226223